Дорнмас

Дорнмас

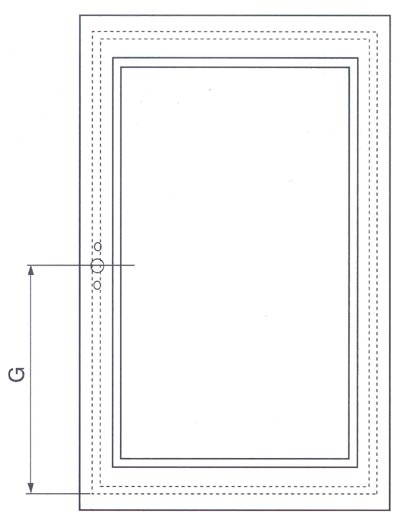
Расстояние от фальца створки до центра отверстия по ручку.

Поиск: Дорнмас

blog comments powered by Disqus

Другие определения

Полиамид

Полиамид

Сверхпрочный пластик с низкой теплопроводностью.

Плинтус

Плинтус

Профилированная деревянная или пластиковая рейка (профилированный брусок), предназначенная для прикрытия щелей между полом и стеной. Плинтус служит элементом оформления помещения.

Герметик

Герметик

Вещество, длительное время сохраняющее устойчивость к влаге и применяемое для герметизации стыков, соединений.